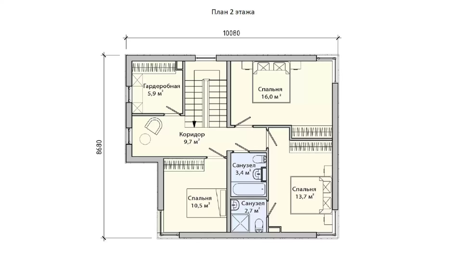
Двухэтажный дом 9 на 10 в современном стиле
Проект БП-136/3, двухэтажный загородный дом 9 на 10 метров в современном стиле, общей площадью 138,2 м2, из утепленных железобетонных панелей. В доме 4 спальни, 3 санузла, гардеробная и техническое помещение по котельную. Несущими конструкциями наружных стен являются часторебристые сборные железобетонные стеновые панели, выполненные по технологии БЭНПАН Премиум (270 мм) с встроенной внутренней теплоизоляцией. Несущие внутренние стены из панелей БЭНПАН (180 мм). Перегородки: БЭНПАН 100 мм. Плиты перекрытия БЭНПАН 305 мм. Высота стен первого этажа 3,05 метра, второго 2,73метра. Крыша: вальмовая с организованнымводостоком. Покрытие кровли: мягкая черепица.Облицовка фасада: гладкая штукатурка и декоративным кирпич. В качестве наружного облицовочного слоя цоколя здания применяется мраморная крошка.
Планировки
Хотите изменить планировку под свои потребности?
Наши архитекторы разработают индивидуальный проект на основе ПБ-136/3 с учетом ваших пожеланий: изменение комнат, добавление мансарды, изменение размеров и т.д.
Получите купон на скидку при следующем заказе Предлагаем специальный купон на скидку, которым можно воспользоваться при выборе услуг из следующей комплектации. Размер скидки зависит от выбранной комплектации, чем полнее, тем больше скидка. Ее можно использовать для улучшения комплектации с «Базовой» до «Теплого контура», с «Теплого контура» до «Теплого контура+», с «Теплого контура+» до «White Box». С «White Box» купон можно использовать для получения скидки на дополнительные строительные работы на участке или передать другу. Купон станет великолепным подарком, позволяющим сэкономить на строительстве. Его действие сохраняется в течение 3х лет.
БЭНПАН-Д – это двухслойные железобетонные ребристые утепленные панели, предназначенные для капитального домостроения.
Предустановленный утеплитель предназначен для устройства "Мокрого" фасада.
Технология БЭНПАН| Комплектация |
Базовая
Базовая
Устройство фундаментной плиты толщиной 250мм с утеплением 100мм и ПВХ мембраной, гильзы для ввода коммуникаций, изготовление и монтаж домокомплекта
|
Теплый контур
Теплый контур
Устройство фундаментной плиты с утеплением и мембраной, гильзы для коммуникаций, монтаж домокомплекта и перегородок из полистиролбетона, стропильной системы, обрешетки, гидроиоляционной пленки и контробрешетки, монтаж металлочерепицы, вентиляционных коробов, софитов ПВХ, водосточной системы ПВХ, снегозадержаний, окон из профиля Rehau 60мм.
|
Теплый контур +
Теплый контур +
Устройство фундаментной плиты с утеплением и мембраной
Установка гильз для коммуникаций Изготовление и монтаж Домокомплекта и перегородок из Полистиролбетона Устройство стропильной системы и обрешетки Монтаж металлочерепицы Установка вентиляционных коробов, софитов, водосточной системы, снегозадержателей Изготовление и монтаж окон |
Отделка White box
Отделка White box
В стандартную отделку white box (пред чистовые работы) включены следующие виды работ: Работы по выравниванию стен и откосов с подготовкой под отделку финишными материалами.
Работы по устройству механизированной стяжки, под последующее устройство финишного покрытия (линолеум, ламинат, плитка и т.д.); |
|---|---|---|---|---|
|
Домокомплект
Высота стен 2,72 м
Домокомплект — это комплект несущих стеновых панелей БЭНПАН Д с предустановленным утеплителем из минераловатной плиты толщиной 170мм предназначенного для устройства "Мокрого фасада". Высота потолков 2,72 м
Плиты перекрытий БЭНПАН при наличие второго этажа
В рамках заказа могут быть выполненными с каналами под электрику (розетки, выключатели). Для прокладки электрики закладывается гофра диаметром 25 мм.
Высота стен 2,72 м |
||||
|
Фундамент
Монолитная плита 250мм
Монолитная плита относится к плавающим незаглубленным фундаментам. Свое название она получила из-за того, что железобетонная основа заливается под всю площадь дома, образуя большую плиту толщиной 250 мм, лежащую на слое утеплителя 100 мм. Под утеплителем насыпается песчаная подушка, которая перераспределяет нагрузку от дома на грунт и служит демпфером при морозном пучении. Часто такой фундамент — единственное возможное решение. Например, на нестабильных, сыпучих грунтах, при высоких грунтовых водах, на глинах с большой глубиной промерзания или на насыпном грунте.
Монолитная плита 250мм |
||||
|
Кровля
Металлочерепица
Форма металлочерепицы «Монтеррей» приближена к форме классической керамической черепицы. Металлочерепица изготавливается из оцинкованной стали с полимерным покрытием и отличается повышенной стойкостью к коррозии, а также большим выбором цветовых решений.
Металлочерепица |
||||
|
Окна
ПВХ с профилем Rehau 60 мм
ПВХ-окно с профилем Rehau 60 мм — это высококачественная пластиковая оконная система с монтажной глубиной 60 мм, обеспечивающая отличную тепло- и шумоизоляцию, долговечность и устойчивость к климатическим воздействиям. Идеально подходит для жилых помещений, сочетая энергоэффективность, лёгкость ухода и современный дизайн.
ПВХ с профилем Rehau 60 мм |
||||
|
Перегородки
Полистиролбетон 100мм
Легкие межкомнатные перегородки 100 мм выполнены из двух слоев бетона: 1 слой пенополистиролбетон, 2 слой бетон В20 на мелких заполнителях. Армированы одной дорожной сеткой с ячейкой 200х200 мм. В рамках заказа могут быть выполненными с каналами под электрику (розетки, выключатели). Для прокладки электрики закладывается гофра диаметром 25 мм.
Полистиролбетон 100мм |
||||
|
Отделка фасада
Декоративная штукатурка "Короед" 3мм
Декоративная штукатурка «Короед» получила название из-за характерной фактуры поверхности, напоминающей старое дерево. Штукатурка наносится по специальной фасадной сетке, что позволяет избежать трещин при эксплуатации декоративного покрытия. Возможен выбор различных цветов и их сочетаний. Отделка фасада декоративной штукатуркой выполняется при температурах от +5°С и выше. Срок службы покрытия: от 10 лет.
Декоративная штукатурка "Короед" 3мм |
||||
|
Венткороб на крыше
Венткороб на крыше
Обеспечивает проход труб вентиляции и дымоходов через кровлю.
|
||||
|
Снегозадержание
Снегозадержание
Специальная система GrandLine, которая предназначена для удержания снега и предотвращения его сползания; устанавливается на кровле. Снегозадержатель имеет две основные функции: 1) удержание снежного покрова на кровле с целью теплоизоляции, 2)предотвращение внезапного схода снежной массы с кровли при ее таянии.
|
||||
|
Устройство софитов
Устройство софитов
Специальные панели для подшива карнизного и фронтонного свесов кровли, потолка террасы и крыльца.
|
||||
|
Водосточная система
Водосточная система
Виниловая водосточная система Docke Standard в цвет кровли. Виниловые водосточные системы Docke надежны, нетребовательны к уходу, сохраняют свои функциональные качества долгие годы. Виниловые системы водостоков не боятся ярких солнечных лучей. Уникальная рецептура верхнего слоя материала, из которого выполнен водосток, обеспечивает стойкость к выцветанию, в том числе и для темных цветов, на протяжении всего срока службы.
|
||||
|
Отделка White box
Отделка White box
White Box — предчистовой этап отделочных работ перед чистовой отделкой, куда дополнительно к «Тёплому контуру» входят: Индивидуальное проектирование инженерных систем. Подготовка полов: Отделка стен: Разводка и подключение всех инженерных коммуникаций: a. Электроснабжение:
b. Отопление:
c. Канализация: d. Водопровод: e. Котельная под ключ:
|
||||
Встроенные коммуникации в панелях БЭНПАН
Независимо от выбранной вами технологии строительства вашего дома вам необходима проектная документация таких разделов, как ОВ (отопление, вентиляция и кондиционирование), ВК (водоснабжение и канализация), ЭМ (электроснабжение и освещение). Наличие проектной документации позволяет изначально выбрать и согласовать с вами необходимые материалы, получить смету и обеспечить дальнейший контроль за качественным исполнением работ согласно проектной документации по вашему требованию. Технология БЭНПАН позволяет при наличии проектной документации на стадии разработки конструкторской документации по производству панелей БЭНПАН предусмотреть все требуемые каналы для проведения инженерно-монтажных строительных работ. При этом элементы вентиляции (см.1) и подразетников (см.2) будут предустановлены. Внутренняя поверхность стен (внешних стен и перегородок) соответствует классу А3-А4. Таким образом, при заказе панелей БЭНПАН с коммуникациями эффект очевиден: скорость, цена, качество, культура производства.
|
0 ₽
Выбрать
|
0 ₽
Выбрать
|
0 ₽
Выбрать
|
0 ₽
Выбрать
|
БЭНПАН Премиум — это трехслойные железобетонные ребристые утепленные панели, предназначенные для капитального домостроения.
Ребра жесткости ж/б панелей БЭНПАН Премиум скрыты внутри. Внешние поверхности панели образованы фибробетонными слоями, между которыми заложен слой утеплителя.
Технология БЭНПАН| Комплектация |
Базовая
Базовая
Устройство фундаментной плиты толщиной 250мм с утеплением 100мм и ПВХ мембраной, гильзы для ввода коммуникаций, изготовление и монтаж домокомплекта
|
Теплый контур
Теплый контур
Устройство фундаментной плиты с утеплением и мембраной, гильзы для коммуникаций, монтаж домокомплекта и перегородок из полистиролбетона, стропильной системы, обрешетки, гидроиоляционной пленки и контробрешетки, монтаж металлочерепицы, вентиляционных коробов, софитов ПВХ, водосточной системы ПВХ, снегозадержаний, окон из профиля Rehau 60мм.
|
Теплый контур +
Теплый контур +
Устройство фундаментной плиты с утеплением и мембраной
Установка гильз для коммуникаций Изготовление и монтаж Домокомплекта и перегородок из Полистиролбетона Устройство стропильной системы и обрешетки Монтаж металлочерепицы Установка вентиляционных коробов, софитов, водосточной системы, снегозадержателей Изготовление и монтаж окон |
Отделка White box
Отделка White box
В стандартную отделку white box (пред чистовые работы) включены следующие виды работ: Работы по выравниванию стен и откосов с подготовкой под отделку финишными материалами.
Работы по устройству механизированной стяжки, под последующее устройство финишного покрытия (линолеум, ламинат, плитка и т.д.); |
|---|---|---|---|---|
|
Домокомплект
Высота стен 2,72 м
Домокомплект — это комплект несущих стеновых панелей БЭНПАН Премиум. Панель представляет собой трехслойную стеновую панель из фибробетона с предустановленным слоем утеплителя толщиной 170 мм. Внутренний несущий слой — 50 мм с ребрами жесткости 140 мм, наружный ограждающий слой — 50 мм. Данная панель поставляется с поверхностью под покраску в гладком виде или с тиснением. Внутренняя сторона готова под шпаклевку. Высота потолков 2,72 м
Плиты перекрытий БЭНПАН при наличие второго этажа
В рамках заказа могут быть выполненными с каналами под электрику (розетки, выключатели). Для прокладки электрики закладывается гофра диаметром 25 мм.
Высота стен 2,72 м |
||||
|
Фундамент
Монолитная плита 250мм
Монолитная плита относится к плавающим незаглубленным фундаментам. Свое название она получила из-за того, что железобетонная основа заливается под всю площадь дома, образуя большую плиту толщиной 250 мм, лежащую на слое утеплителя 100 мм. Под утеплителем насыпается песчаная подушка, которая перераспределяет нагрузку от дома на грунт и служит демпфером при морозном пучении. Часто такой фундамент — единственное возможное решение. Например, на нестабильных, сыпучих грунтах, при высоких грунтовых водах, на глинах с большой глубиной промерзания или на насыпном грунте.
Монолитная плита 250мм |
||||
|
Кровля
Металлочерепица
Форма металлочерепицы «Монтеррей» приближена к форме классической керамической черепицы. Металлочерепица изготавливается из оцинкованной стали с полимерным покрытием и отличается повышенной стойкостью к коррозии, а также большим выбором цветовых решений.
Металлочерепица |
||||
|
Окна
ПВХ с профилем Rehau 60 мм
ПВХ-окно с профилем Rehau 60 мм — это высококачественная пластиковая оконная система с монтажной глубиной 60 мм, обеспечивающая отличную тепло- и шумоизоляцию, долговечность и устойчивость к климатическим воздействиям. Идеально подходит для жилых помещений, сочетая энергоэффективность, лёгкость ухода и современный дизайн.
ПВХ с профилем Rehau 60 мм |
||||
|
Перегородки
Полистиролбетон 100мм
Легкие межкомнатные перегородки 100 мм выполнены из двух слоев бетона: 1 слой пенополистиролбетон, 2 слой бетон В20 на мелких заполнителях. Армированы одной дорожной сеткой с ячейкой 200х200 мм. В рамках заказа могут быть выполненными с каналами под электрику (розетки, выключатели). Для прокладки электрики закладывается гофра диаметром 25 мм.
Полистиролбетон 100мм |
||||
|
Отделка фасада
Декоративная штукатурка "Короед" 3мм
Декоративная штукатурка «Короед» получила название из-за характерной фактуры поверхности, напоминающей старое дерево. Штукатурка наносится по специальной фасадной сетке, что позволяет избежать трещин при эксплуатации декоративного покрытия. Возможен выбор различных цветов и их сочетаний. Отделка фасада декоративной штукатуркой выполняется при температурах от +5°С и выше. Срок службы покрытия: от 10 лет.
Декоративная штукатурка "Короед" 3мм |
||||
|
Венткороб на крыше
Венткороб на крыше
Обеспечивает проход труб вентиляции и дымоходов через кровлю.
|
||||
|
Снегозадержание
Снегозадержание
Специальная система GrandLine, которая предназначена для удержания снега и предотвращения его сползания; устанавливается на кровле. Снегозадержатель имеет две основные функции: 1) удержание снежного покрова на кровле с целью теплоизоляции, 2)предотвращение внезапного схода снежной массы с кровли при ее таянии.
|
||||
|
Устройство софитов
Устройство софитов
Специальные панели для подшива карнизного и фронтонного свесов кровли, потолка террасы и крыльца.
|
||||
|
Водосточная система
Водосточная система
Виниловая водосточная система Docke Standard в цвет кровли. Виниловые водосточные системы Docke надежны, нетребовательны к уходу, сохраняют свои функциональные качества долгие годы. Виниловые системы водостоков не боятся ярких солнечных лучей. Уникальная рецептура верхнего слоя материала, из которого выполнен водосток, обеспечивает стойкость к выцветанию, в том числе и для темных цветов, на протяжении всего срока службы.
|
||||
|
Отделка White box
Отделка White box
White Box — предчистовой этап отделочных работ перед чистовой отделкой, куда дополнительно к «Тёплому контуру» входят: Индивидуальное проектирование инженерных систем. Подготовка полов: Отделка стен: Разводка и подключение всех инженерных коммуникаций: a. Электроснабжение:
b. Отопление:
c. Канализация: d. Водопровод: e. Котельная под ключ:
|
||||
Встроенные коммуникации в панелях БЭНПАН
Независимо от выбранной вами технологии строительства вашего дома вам необходима проектная документация таких разделов, как ОВ (отопление, вентиляция и кондиционирование), ВК (водоснабжение и канализация), ЭМ (электроснабжение и освещение). Наличие проектной документации позволяет изначально выбрать и согласовать с вами необходимые материалы, получить смету и обеспечить дальнейший контроль за качественным исполнением работ согласно проектной документации по вашему требованию. Технология БЭНПАН позволяет при наличии проектной документации на стадии разработки конструкторской документации по производству панелей БЭНПАН предусмотреть все требуемые каналы для проведения инженерно-монтажных строительных работ. При этом элементы вентиляции (см.1) и подразетников (см.2) будут предустановлены. Внутренняя поверхность стен (внешних стен и перегородок) соответствует классу А3-А4. Таким образом, при заказе панелей БЭНПАН с коммуникациями эффект очевиден: скорость, цена, качество, культура производства.
|
0 ₽
Выбрать
|
0 ₽
Выбрать
|
0 ₽
Выбрать
|
0 ₽
Выбрать
|
БЭНПАН Апекс — это трехслойные железобетонные ребристые утепленные панели увеличенной толщины, предназначенные для капитального домостроения.
Ребра жесткости ж/б панелей БЭНПАН Апекс скрыты внутри. Внешние поверхности панели образованы фибробетонными слоями, между которыми заложен слой утеплителя. Панель позволяет закрывать собой стык между БЭНПАН Апекс и БЭНПАН Премиум за счет увеличенной толщины панели и специальной формы стыковочных краев, тем саамы полностью убираю видимость стыка, что позволяет наносить лакокрасочные и штукатурные составы на фасад будущего здания не боясь растрескивания на стыке панелей.
Технология БЭНПАН| Комплектация |
Базовая
Базовая
Устройство фундаментной плиты толщиной 250мм с утеплением 100мм и ПВХ мембраной, гильзы для ввода коммуникаций, изготовление и монтаж домокомплекта
|
Теплый контур
Теплый контур
Устройство фундаментной плиты с утеплением и мембраной, гильзы для коммуникаций, монтаж домокомплекта и перегородок из полистиролбетона, стропильной системы, обрешетки, гидроиоляционной пленки и контробрешетки, монтаж металлочерепицы, вентиляционных коробов, софитов ПВХ, водосточной системы ПВХ, снегозадержаний, окон из профиля Rehau 60мм.
|
Теплый контур +
Теплый контур +
Устройство фундаментной плиты с утеплением и мембраной
Установка гильз для коммуникаций Изготовление и монтаж Домокомплекта и перегородок из Полистиролбетона Устройство стропильной системы и обрешетки Монтаж металлочерепицы Установка вентиляционных коробов, софитов, водосточной системы, снегозадержателей Изготовление и монтаж окон | Отделка White box
Отделка White box
В стандартную отделку white box (пред чистовые работы) включены следующие виды работ: Работы по выравниванию стен и откосов с подготовкой под отделку финишными материалами.
Работы по устройству механизированной стяжки, под последующее устройство финишного покрытия (линолеум, ламинат, плитка и т.д.); |
|---|---|---|---|---|
|
Домокомплект
Высота стен 2,72 м
Домокомплект — это комплект несущих стеновых панелей БЭНПАН Апекс. Панель представляет собой трехслойную стеновую панель из фибробетона по аналогии с БЭНПАН Премиум с предустановленным слоем утеплителя толщиной 170 мм. Внутренний несущий слой — 50 мм с ребрами жесткости 140 мм, наружный ограждающий слой — 50 мм.
Ребра жесткости ж/б панелей БЭНПАН Апекс скрыты внутри. Внешние поверхности панели образованы фибробетонными слоями, между которыми заложен слой утеплителя. Панель позволяет закрывать собой стык между БЭНПАН Апекс и БЭНПАН Премиум за счет увеличенной толщины панели и специальной формы стыковочных краев, тем саамы полностью убираю видимость стыка, что позволяет наносить лакокрасочные и штукатурные составы на фасад будущего здания не боясь растрескивания на стыке панелей.
Данная панель поставляется с готовым фасадом под покраску в гладком виде. Внутренняя сторона готова под шпаклевку. Высота потолков 2,72 м
Плиты перекрытий БЭНПАН при наличие второго этажа
В рамках заказа могут быть выполненными с каналами под электрику (розетки, выключатели). Для прокладки электрики закладывается гофра диаметром 25 мм.
Высота стен 2,72 м |
||||
|
Фундамент
Монолитная плита 250мм
Монолитная плита относится к плавающим незаглубленным фундаментам. Свое название она получила из-за того, что железобетонная основа заливается под всю площадь дома, образуя большую плиту толщиной 250 мм, лежащую на слое утеплителя 100 мм. Под утеплителем насыпается песчаная подушка, которая перераспределяет нагрузку от дома на грунт и служит демпфером при морозном пучении. Часто такой фундамент — единственное возможное решение. Например, на нестабильных, сыпучих грунтах, при высоких грунтовых водах, на глинах с большой глубиной промерзания или на насыпном грунте.
Монолитная плита 250мм |
||||
|
Кровля
Металлочерепица
Форма металлочерепицы «Монтеррей» приближена к форме классической керамической черепицы. Металлочерепица изготавливается из оцинкованной стали с полимерным покрытием и отличается повышенной стойкостью к коррозии, а также большим выбором цветовых решений.
Металлочерепица |
||||
|
Окна
ПВХ с профилем Rehau 60 мм
ПВХ-окно с профилем Rehau 60 мм — это высококачественная пластиковая оконная система с монтажной глубиной 60 мм, обеспечивающая отличную тепло- и шумоизоляцию, долговечность и устойчивость к климатическим воздействиям. Идеально подходит для жилых помещений, сочетая энергоэффективность, лёгкость ухода и современный дизайн.
ПВХ с профилем Rehau 60 мм |
||||
|
Перегородки
Полистиролбетон 100мм
Легкие межкомнатные перегородки 100 мм выполнены из двух слоев бетона: 1 слой пенополистиролбетон, 2 слой бетон В20 на мелких заполнителях. Армированы одной дорожной сеткой с ячейкой 200х200 мм. В рамках заказа могут быть выполненными с каналами под электрику (розетки, выключатели). Для прокладки электрики закладывается гофра диаметром 25 мм.
Полистиролбетон 100мм |
||||
|
Отделка фасада
Декоративная штукатурка "Короед" 3мм
Декоративная штукатурка «Короед» получила название из-за характерной фактуры поверхности, напоминающей старое дерево. Штукатурка наносится по специальной фасадной сетке, что позволяет избежать трещин при эксплуатации декоративного покрытия. Возможен выбор различных цветов и их сочетаний. Отделка фасада декоративной штукатуркой выполняется при температурах от +5°С и выше. Срок службы покрытия: от 10 лет.
Декоративная штукатурка "Короед" 3мм |
||||
|
Венткороб на крыше
Венткороб на крыше
Обеспечивает проход труб вентиляции и дымоходов через кровлю.
|
||||
|
Снегозадержание
Снегозадержание
Специальная система GrandLine, которая предназначена для удержания снега и предотвращения его сползания; устанавливается на кровле. Снегозадержатель имеет две основные функции: 1) удержание снежного покрова на кровле с целью теплоизоляции, 2)предотвращение внезапного схода снежной массы с кровли при ее таянии.
|
||||
|
Устройство софитов
Устройство софитов
Специальные панели для подшива карнизного и фронтонного свесов кровли, потолка террасы и крыльца.
|
||||
|
Водосточная система
Водосточная система
Виниловая водосточная система Docke Standard в цвет кровли. Виниловые водосточные системы Docke надежны, нетребовательны к уходу, сохраняют свои функциональные качества долгие годы. Виниловые системы водостоков не боятся ярких солнечных лучей. Уникальная рецептура верхнего слоя материала, из которого выполнен водосток, обеспечивает стойкость к выцветанию, в том числе и для темных цветов, на протяжении всего срока службы.
|
||||
|
Отделка White box
Отделка White box
White Box — предчистовой этап отделочных работ перед чистовой отделкой, куда дополнительно к «Тёплому контуру» входят: Индивидуальное проектирование инженерных систем. Подготовка полов: Отделка стен: Разводка и подключение всех инженерных коммуникаций: a. Электроснабжение:
b. Отопление:
c. Канализация: d. Водопровод: e. Котельная под ключ:
|
||||
Встроенные коммуникации в панелях БЭНПАН
Независимо от выбранной вами технологии строительства вашего дома вам необходима проектная документация таких разделов, как ОВ (отопление, вентиляция и кондиционирование), ВК (водоснабжение и канализация), ЭМ (электроснабжение и освещение). Наличие проектной документации позволяет изначально выбрать и согласовать с вами необходимые материалы, получить смету и обеспечить дальнейший контроль за качественным исполнением работ согласно проектной документации по вашему требованию. Технология БЭНПАН позволяет при наличии проектной документации на стадии разработки конструкторской документации по производству панелей БЭНПАН предусмотреть все требуемые каналы для проведения инженерно-монтажных строительных работ. При этом элементы вентиляции (см.1) и подразетников (см.2) будут предустановлены. Внутренняя поверхность стен (внешних стен и перегородок) соответствует классу А3-А4. Таким образом, при заказе панелей БЭНПАН с коммуникациями эффект очевиден: скорость, цена, качество, культура производства.
|
0 ₽
Выбрать
|
0 ₽
Выбрать
|
0 ₽
Выбрать
|
0 ₽
Выбрать
|
БЭНПАН+ – это железобетонные ребристые утепленные панели, предназначенные для капитального домостроения.
Ребра жесткости ж/б панелей БЭНПАН+ обращены наружу и служат готовой монтажной подсистемой для вентилируемого фасада. Монтаж дома из ж/б панелей БЭНПАН+, включая фасадные работы, возможен в любое время года.
Технология БЭНПАН| Комплектация |
Базовая
Базовая
Устройство фундаментной плиты толщиной 250мм с утеплением 100мм и ПВХ мембраной, гильзы для ввода коммуникаций, изготовление и монтаж домокомплекта
|
Теплый контур
Теплый контур
Устройство фундаментной плиты с утеплением и мембраной, гильзы для коммуникаций, монтаж домокомплекта и перегородок из полистиролбетона, стропильной системы, обрешетки, гидроиоляционной пленки и контробрешетки, монтаж металлочерепицы, вентиляционных коробов, софитов ПВХ, водосточной системы ПВХ, снегозадержаний, окон из профиля Rehau 60мм.
|
Теплый контур +
Теплый контур +
Устройство фундаментной плиты с утеплением и мембраной
Установка гильз для коммуникаций Изготовление и монтаж Домокомплекта и перегородок из Полистиролбетона Устройство стропильной системы и обрешетки Монтаж металлочерепицы Установка вентиляционных коробов, софитов, водосточной системы, снегозадержателей Изготовление и монтаж окон |
Отделка White box
Отделка White box
В стандартную отделку white box (пред чистовые работы) включены следующие виды работ: Работы по выравниванию стен и откосов с подготовкой под отделку финишными материалами.
Работы по устройству механизированной стяжки, под последующее устройство финишного покрытия (линолеум, ламинат, плитка и т.д.); |
|---|---|---|---|---|
|
Домокомплект
Высота стен 2,72 м
Домокомплект — это комплект несущих стеновых панелей БЭНПАН+ с предустановленным утеплителем 170 мм и готовой подсистемой из оцинкованного профиля толщиной 1,2мм для монтажа вентилируемого фасада. Высота потолков 2,72 м
Плиты перекрытий БЭНПАН при наличие второго этажа
В рамках заказа могут быть выполненными с каналами под электрику (розетки, выключатели). Для прокладки электрики закладывается гофра диаметром 25 мм.
Высота стен 2,72 м |
||||
|
Фундамент
Монолитная плита 250мм
Монолитная плита относится к плавающим незаглубленным фундаментам. Свое название она получила из-за того, что железобетонная основа заливается под всю площадь дома, образуя большую плиту толщиной 250 мм, лежащую на слое утеплителя 100 мм. Под утеплителем насыпается песчаная подушка, которая перераспределяет нагрузку от дома на грунт и служит демпфером при морозном пучении. Часто такой фундамент — единственное возможное решение. Например, на нестабильных, сыпучих грунтах, при высоких грунтовых водах, на глинах с большой глубиной промерзания или на насыпном грунте.
Монолитная плита 250мм |
||||
|
Кровля
Металлочерепица
Форма металлочерепицы «Монтеррей» приближена к форме классической керамической черепицы. Металлочерепица изготавливается из оцинкованной стали с полимерным покрытием и отличается повышенной стойкостью к коррозии, а также большим выбором цветовых решений.
Металлочерепица |
||||
|
Окна
ПВХ с профилем Rehau 60 мм
ПВХ-окно с профилем Rehau 60 мм — это высококачественная пластиковая оконная система с монтажной глубиной 60 мм, обеспечивающая отличную тепло- и шумоизоляцию, долговечность и устойчивость к климатическим воздействиям. Идеально подходит для жилых помещений, сочетая энергоэффективность, лёгкость ухода и современный дизайн.
ПВХ с профилем Rehau 60 мм |
||||
|
Перегородки
Полистиролбетон 100мм
Легкие межкомнатные перегородки 100 мм выполнены из двух слоев бетона: 1 слой пенополистиролбетон, 2 слой бетон В20 на мелких заполнителях. Армированы одной дорожной сеткой с ячейкой 200х200 мм. В рамках заказа могут быть выполненными с каналами под электрику (розетки, выключатели). Для прокладки электрики закладывается гофра диаметром 25 мм.
Полистиролбетон 100мм |
||||
|
Отделка фасада
ФЦП Cedral
ФЦП Cedral |
||||
|
Венткороб на крыше
Венткороб на крыше
Обеспечивает проход труб вентиляции и дымоходов через кровлю.
|
||||
|
Снегозадержание
Снегозадержание
Специальная система GrandLine, которая предназначена для удержания снега и предотвращения его сползания; устанавливается на кровле. Снегозадержатель имеет две основные функции: 1) удержание снежного покрова на кровле с целью теплоизоляции, 2)предотвращение внезапного схода снежной массы с кровли при ее таянии.
|
||||
|
Устройство софитов
Устройство софитов
Специальные панели для подшива карнизного и фронтонного свесов кровли, потолка террасы и крыльца.
|
||||
|
Водосточная система
Водосточная система
Виниловая водосточная система Docke Standard в цвет кровли. Виниловые водосточные системы Docke надежны, нетребовательны к уходу, сохраняют свои функциональные качества долгие годы. Виниловые системы водостоков не боятся ярких солнечных лучей. Уникальная рецептура верхнего слоя материала, из которого выполнен водосток, обеспечивает стойкость к выцветанию, в том числе и для темных цветов, на протяжении всего срока службы.
|
||||
|
Отделка White box
Отделка White box
White Box — предчистовой этап отделочных работ перед чистовой отделкой, куда дополнительно к «Тёплому контуру» входят: Индивидуальное проектирование инженерных систем. Подготовка полов: Отделка стен: Разводка и подключение всех инженерных коммуникаций: a. Электроснабжение:
b. Отопление:
c. Канализация: d. Водопровод: e. Котельная под ключ:
|
||||
Встроенные коммуникации в панелях БЭНПАН
Независимо от выбранной вами технологии строительства вашего дома вам необходима проектная документация таких разделов, как ОВ (отопление, вентиляция и кондиционирование), ВК (водоснабжение и канализация), ЭМ (электроснабжение и освещение). Наличие проектной документации позволяет изначально выбрать и согласовать с вами необходимые материалы, получить смету и обеспечить дальнейший контроль за качественным исполнением работ согласно проектной документации по вашему требованию. Технология БЭНПАН позволяет при наличии проектной документации на стадии разработки конструкторской документации по производству панелей БЭНПАН предусмотреть все требуемые каналы для проведения инженерно-монтажных строительных работ. При этом элементы вентиляции (см.1) и подразетников (см.2) будут предустановлены. Внутренняя поверхность стен (внешних стен и перегородок) соответствует классу А3-А4. Таким образом, при заказе панелей БЭНПАН с коммуникациями эффект очевиден: скорость, цена, качество, культура производства.
|
0 ₽
Выбрать
|
0 ₽
Выбрать
|
0 ₽
Выбрать
|
0 ₽
Выбрать
|
Наши менеджеры готовы проконсультировать вас и подобрать оптимальный вариант комплектации
Мы аккредитованы в ведущих банках страны
Получите одобрение ипотеки на специальных условиях для наших клиентов
Специальные условия: Ставка от 6% годовых, первоначальный взнос от 20.1%, срок кредита до 30 лет. Помощь в оформлении документов и получении одобрения.










